Продается участок 3 818м2 в Будве, Черногория - 763 600€
Комментарии
В одном из живописных уголков побережья Адриатики - в поселке Булярица, на Будванской ривьере - представлен земельный участок, обладающий высоким инвестиционным потенциалом. Регион славится великолепной природой, благоприятным климатом и активно развивающейся инфраструктурой, что делает его особенно привлекательным как для частного строительства, так и для девелоперских проектов.
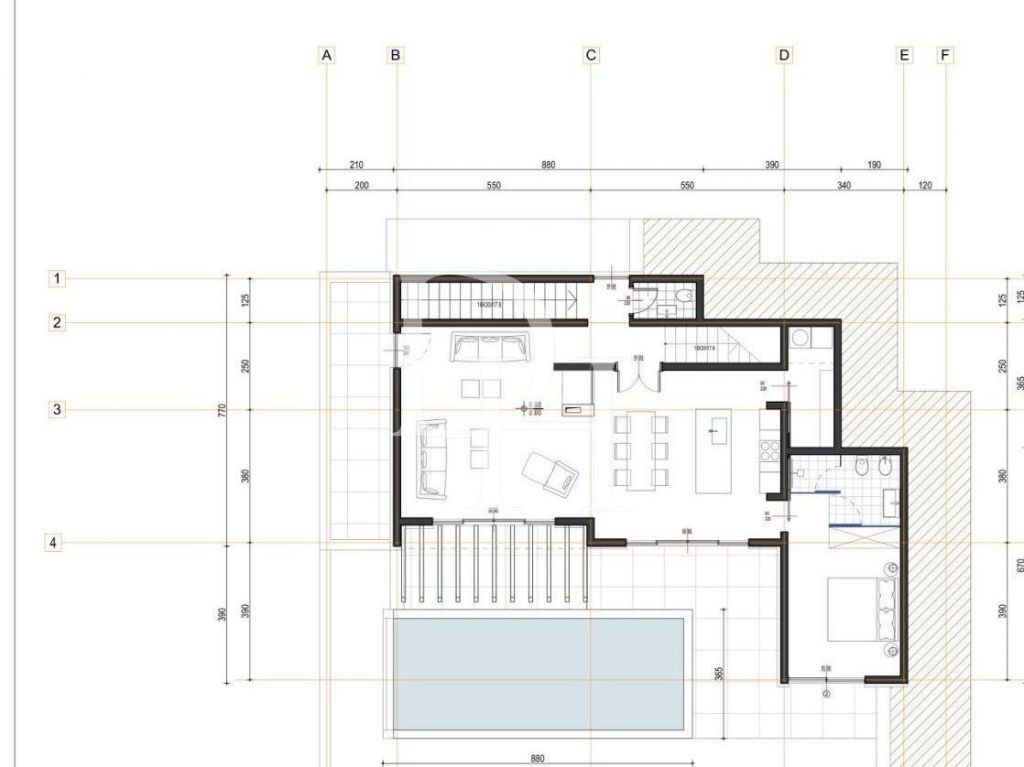
Общая площадь участка составляет 3818 квадратных метров. Он имеет статус урбанизированного, что позволяет в полной мере реализовать строительные проекты в соответствии с актуальными градостроительными регламентами. В настоящее время разработана концепция, предусматривающая возведение пяти отдельно стоящих жилых объектов с общей площадью 1060 квадратных метров. Такое решение идеально подходит для создания эксклюзивного жилого комплекса с бассейнами и рекреационными зонами.
К участку ведет качественная подъездная дорога, а необходимые инженерные коммуникации - электричество и водоснабжение - находятся по его границе, что значительно упрощает организацию строительного процесса. Основным преимуществом этого участка является панорамный, ничем не закрытый вид на море и горные ландшафты. Такое окружение гарантирует не только высокий уровень комфорта, но и привлекательность для арендаторов и покупателей в будущем.
Расстояние до побережья составляет порядка 800 метров, что делает расположение участка одновременно уединенным и удобным для доступа к пляжам и туристической инфраструктуре. С учетом высокой туристической активности в Будванском регионе и ограниченного предложения подобной земли, данный объект представляет собой разумное капиталовложение с перспективой роста стоимости.
Цена участка составляет 763600 евро.
Расположение: пригород
