Продаются апартаменты 199м2 в Дженовичах, Черногория
Комментарии
В одном из самых престижных уголков Адриатического побережья, в великолепном комплексе Портонови, предлагается эксклюзивный жилой объект класса люкс. Это элегантное пространство создано для тех, кто ценит высокий уровень жизни, современную архитектуру и неповторимую атмосферу Боко-Которского залива. Из больших панорамных окон и просторной террасы открываются впечатляющие виды на морскую гладь, яхтенный порт и горные вершины, создавая ощущение абсолютной гармонии и уединения.
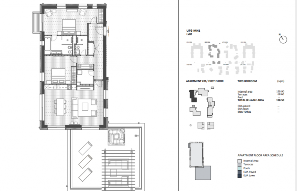
Объект общей площадью 199 квадратных метров включает внутреннее пространство 130 квадратных метров и террасы 69 квадратных метров, на одной из которых установлено частное джакузи. Планировка предусматривает две спальни, две ванные комнаты и просторную зону отдыха, где можно наслаждаться видом на залив в любое время суток. Современный дизайн, использование качественных материалов и внимание к деталям делают это жилье настоящим образцом комфорта и стиля.
Владельцам доступен общий бассейн, подземный паркинг и закрытая территория комплекса, обеспечивающая высокий уровень безопасности и приватности. Цена включает гаражное место, что является редкостью для подобных предложений в Портонови. Объект продается без мебели, что позволяет новому владельцу оформить интерьер в индивидуальном стиле.
Портонови считается одной из самых престижных локаций региона, объединяющей природную красоту, высокий туристический потенциал и инвестиционную привлекательность. Здесь круглый год работают рестораны, бутики, СПА-комплексы и яхт-клуб, что делает это место идеальным для жизни, отдыха и арендного бизнеса. Возможна рассрочка платежа до пяти лет, что открывает дополнительные преимущества для покупателей. Стоимость этого объекта - 1355000 евро.
Вид: вид на горы
Расположение: вторая линия моря
Окна: метало-пластик
Полы: Паркетная доска
В наличии: балкон, терраса, гараж, кондиционер, общий бассейн, парковка, охраняемая территория
