Townhouse for sale in San Miguel de Salinas, Spain
Комментарии
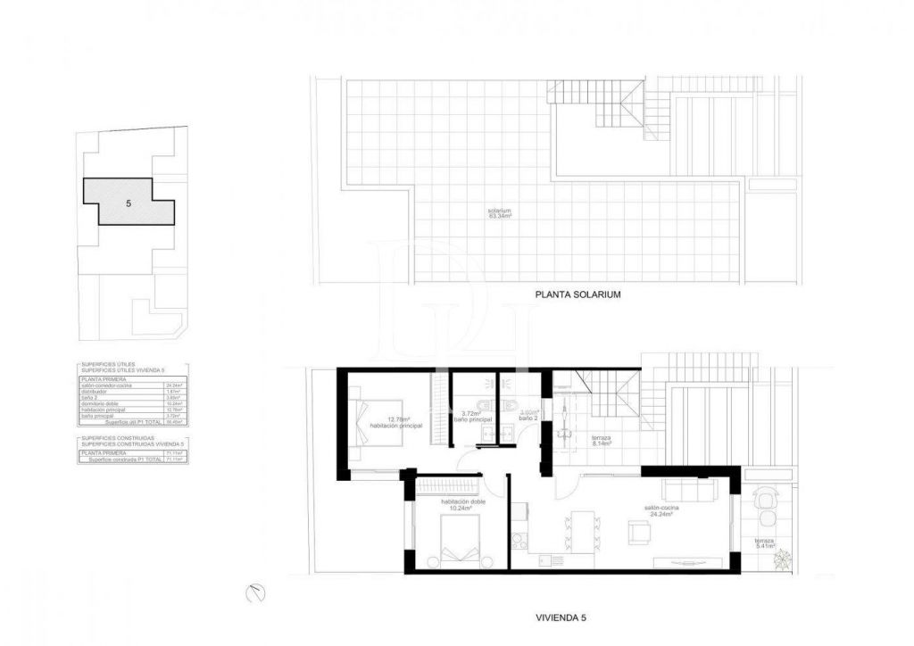
NEW BUILD BUNGALOWS IN PILAR DE LA HORADADA New Build project of 6 bungalows apartments in Pilar de la Horadada. This project is based on 6 bungalows with 2 bedrooms and 2 bathrooms (one of them en suite), kitchen, living room, parking. Ground floor bungalows with private terrace and top floor bungalows with private solarium, where are barbecue area with bench and sink. Storeroom is an optional an extra cost. There is a communal area for the use of the owners with swimming pool and outside shower. Properties will be delivered with fully furnished kitchens, with furniture in the lower and upper part, with the refrigerator, the oven, the induction hob, the extractor and the washing machine or dishwasher, all of them with pre-installation of A / C through ducts, fully finished bathrooms with furniture, screen and mirror, in addition to heating in the floors of the same by electrical system, likewise all lights (Spot light) are included, both indoors and outdoors. Residential complex located a few meters from all services and the centre. Pilar de la Horadada is a typical Spanish village in the most southern part of the Costa Blanca. The large main street has supermarkets, lots of shops, restaurants and bars and some lovely squares. The beautiful beaches of Torre de la Horadada and Mil Palmeras with fine sand promenade is just 5 minutes away. In Pilar de la Horadada there is also a well-developed cycling and walking path network, and there is also a large offer of various sports activities. Lo Romero 18 hole golf course is just a short drive from town. The airports of Corvera (Murcia) and Alicante are respectively 40 and 55 minutes away.


